「桜の郷」住宅設計コンペ

![]() |
![]() |
●敷地面積 :225.08㎡ |
|

![]() |
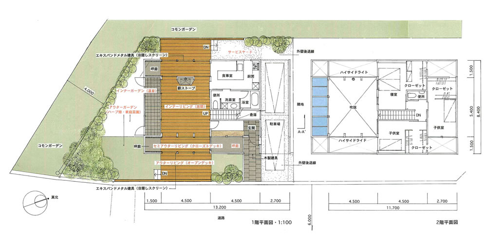
設計コンセプト
|
●内部と外部空間の中間スペースの設定 ●色々な庭の設定
|
![]() |
●中間領域の設定 内部と外部空間の間に建具や壁で囲まれてはいるが、天空が開放されている中間のスペースがある。 ●色々な庭の設定 その全ての「庭」を生活の色々な場面で楽しむ |
|
![]()
1.くつろぐ庭室内の居間も一つの「庭」とみなし、道路とコモンガーデンを繋ぐ「通り庭」と考える |
|
![]() ![]() |
![]() |
インナーリビング/見えない内部空間
|
![]() |
セミアウターリビング/見えない外部空間
|
![]() |
アウターリビング/見える外部空間(オープンデッキ)
|
|
![]() ![]() |
![]() |
2.はたらく庭
3.みる庭
|
![]() |